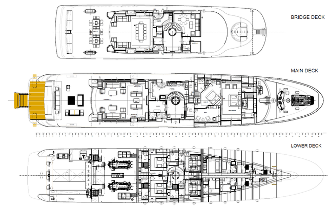
Seven-star experience, this yacht is ideal for up to 12 pax

M/Y RARITY - ROSSININAVI 55M

About This Experience

Booking Options

Week Charter

Imported as net price; frontend applies VAT 13%.

⏱ 1 👥 Max 12 Required